Villa vue mer composée de 2 T3 indépendants à SOLENZARA
20145 solenzara
EXCLUSIVITE, dans quartier calme très recherché de SOLENZARA très belle villa avec belle vue mer sur deux niveaux composée :
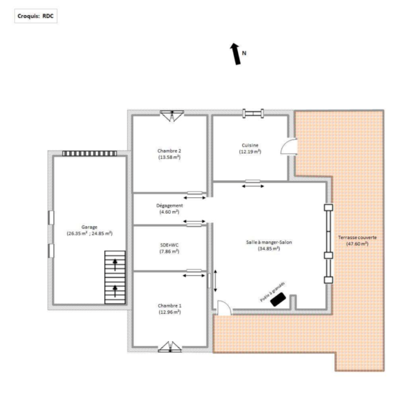
au rdc : cuisine équipée fermée, belle pièce de vie avec sa grande terrasse couverte en vue mer, 2 chambres, salle d’eau avec wc.
A l’étage : Cuisine équipée sur grande pièce de vie et sa terrasse couverte en vue mer, 2 chambres, salle d’eau avec wc.
Le tout sur terrain clos et arboré de 685 m2, un garage et dégagement.1
TRANSAC’IMMOBILIER : 04.95.33.34.97
Votre conseiller : Michael : 06.86.16.88.22
Vous pouvez consulter notre site : transacimmobilier.fr
649000 € FAI
caractéristiques du bien : terrasse
jardin
balcon
parking
cuisine équipée
cuisine aménagée
réf : 330
Type : MAISONS
Surface Terrain : 685
Surface Habitable : 153
Année de construction : 2006
Nombre de pièces : 8
Nombre de chambre : 4
Nombre de salles de bains : 2
Vue :Mer
Exposition : EST
Mode de chauffage :
DPE : C – 160
GES : A – 4
Taxe foncière :
ce bien vous intéresse ?

330
