Villa de 103 m2 avec garage proches commerces, plages et écoles
20240 GHISONACCIA
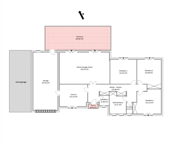
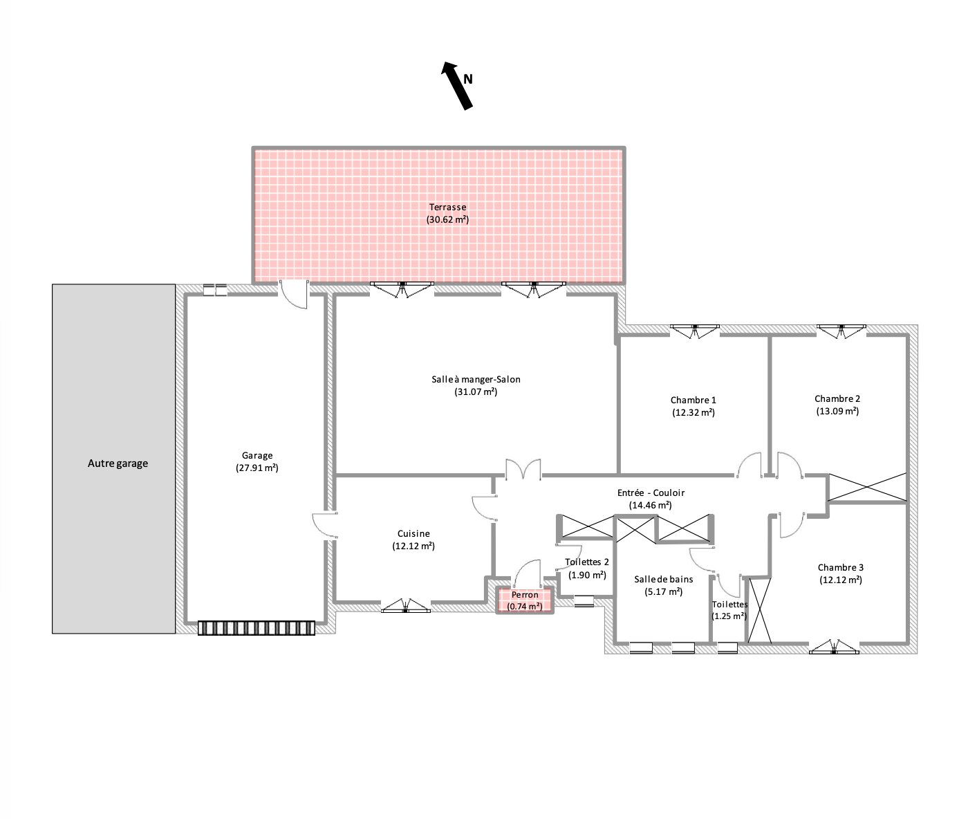
Elle est orientée plein Sud, sans vis à vis et est composée d’un bel espace de vie très lumineux, d’une cuisine, de 3 chambres de 12 m2, d’une salle de bain, wc et d’une entrée avec placard.
Le tout sur une parcelle de 651 m2 avec un grand garage de 28 m2.
TRANSAC’IMMOBILIER : 04.95.33.34.97
Votre conseiller : Michael : 06.86.16.88.22
Vous pouvez consulter notre site : transacimmobilier.fr
289000 € FAI
caractéristiques du bien : jardin
terrasse
garage
cuisine
réf : 232
Type : MAISONS
Surface Terrain : 651
Surface Habitable : 103
Année de construction : 1997
Nombre de pièces : 5
Nombre de chambre : 3
Nombre de salles de bains : 1
Vue :
Exposition : SUD
Mode de chauffage : Radiateurs électriques
DPE : D – 213
GES : B – 6
Taxe foncière :
ce bien vous intéresse ?

232
