Maison de 190 m2 sur 2 niveaux avec T2 et T6
20145 SOLENZARA
En plein coeur de SOLENZARA, avec une vue mer, belle maison de 190 m2 sur 2 niveaux composée au RDC d’un appartement T2 avec séjour-salon, cuisine, chambre et salle d’eau wc.
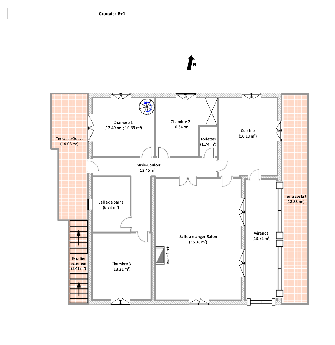
A l’étage : Véranda, cuisine, salon-séjour, dégagement, 3 chambres, sdb, wc accès au rdc avec chambre, salle d’eau, wc. 2 terrasses, garage et cuisine d’été.
Le tout sur un terrain de 885 m2.
TRANSAC’IMMOBILIER : 04.95.33.34.97
Votre conseiller : Michael : 06.86.16.88.22
Vous pouvez consulter notre site : transacimmobilier.fr
665000 € FAI
caractéristiques du bien : jardin
terrasse
balcon
garage
parking
cuisine équipée
cuisine d'été
réf : 274
Type : MAISONS
Surface Terrain : 885
Surface Habitable : 190
Année de construction : 1980
Nombre de pièces : 8
Nombre de chambre : 5
Nombre de salles de bains : 3
Vue :Vue mer
Exposition : EST
Mode de chauffage : Cheminée
DPE : D – 223
GES : B – 7
Taxe foncière :1357
ce bien vous intéresse ?

274
