Dans un quartier calme, charmante villa sur 2 niveaux et terrain clos et arboré de 1173 m2
GHISONACCIA
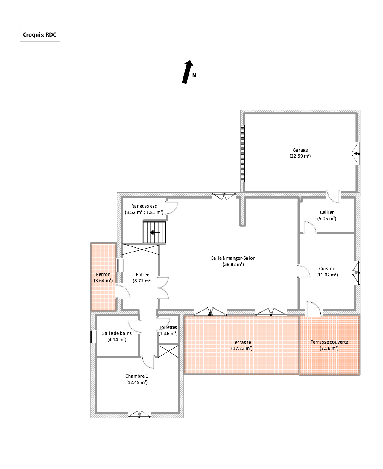
Dans un quartier calme de Ghisonaccia, charmante villa composée au rdc d’une entrée avec placard, une vaste pièce de vie donnant sur une terrasse de 16 m2, cuisine aménagée et séparée donnant sur une terrasse couverte, cellier, 1 chambre avec placard, sdb, wc indépendant. garage. A l’étage : 2 chambres avec placard, salle d’eau et dégagement. Terrain clos et arboré de 1173 m2
TRANSAC’IMMOBILIER : 04.95.33.34.97
Votre conseiller : Michael : 06.86.16.88.22
Vous pouvez consulter notre site : transacimmobilier.fr
389000 € FAI
caractéristiques du bien : Placard
Terrasse couverte et non couverte
Cuisine aménagée et séparée + cellier
Terrain clos et arboré
Quartier calme
réf : 337
Type : MAISONS
Surface Terrain : 1173
Surface Habitable : 118
Année de construction : 2002
Nombre de pièces : 5
Nombre de chambre : 3
Nombre de salles de bains : 2
Vue :
Exposition : SUD
Mode de chauffage : Radiateur électrique
DPE : D – 243
GES : B – 8
Taxe foncière :
ce bien vous intéresse ?

337
