Appartement T4 avec magnifique vue mer au coeur de SOLENZARA
20145 SOLENZARA
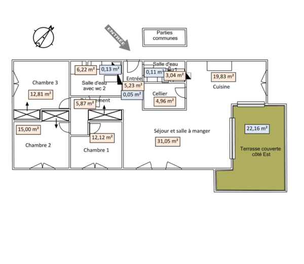
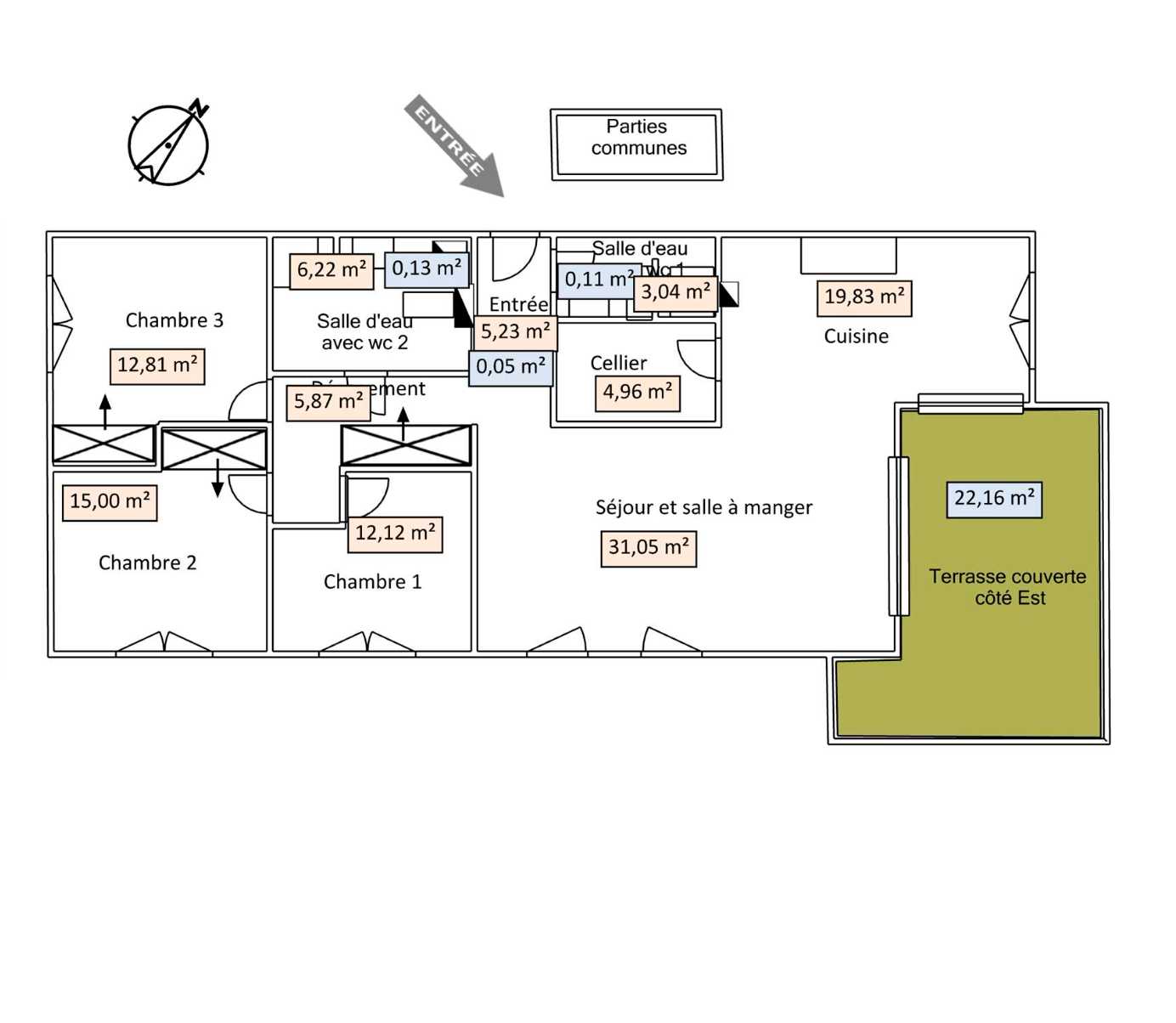
Magnifique appartement T4 situé au 2ème et dernier étage d’une résidence récente avec ascenseur comprenant une cuisine équipée avec ilot central ouverte sur un vaste séjour très lumineux, sa grande terrasse couverte où vous pourrez profiter d’une magnifique vue mer, une entrée, un cellier, un wc indépendant, un dégagement desservant 3 chambres, et une salle d’eau avec wc.
Un emplacement de parking situé au sous-sol du bâtiment complète ce lot.
TRANSAC’IMMOBILIER : 04.95.33.34.97
Votre conseiller : Michael : 06.86.16.88.22
Vous pouvez consulter notre site : transacimmobilier.fr
595000 € FAI
caractéristiques du bien : balcon
terrasse
parking
cuisine équipée
ascenseur
réf : 266
Type : APPARTEMENTS
Surface Terrain :
Surface Habitable : 116
Année de construction :
Nombre de pièces : 5
Nombre de chambre : 3
Nombre de salles de bains : 2
Vue :Mer
Exposition : EST
Mode de chauffage : Climatisation
DPE : C – 110
GES : A – 3
Taxe foncière :205
ce bien vous intéresse ?

266
